

一種擁有自主知識產權,具有國際先進水平的新型建筑幕墻技術——背槽式瓷板干掛、幕墻技術最近由清華大學建筑設計研究院和北京清石創新幕墻技術有限公司共同研制成功。該技術第一次將色彩亮麗、表現力豐富的大規格和超大規格陶瓷板,微晶板采用干掛方式用于對安全性能要求很高的高層和超高層幕墻工程。經國家權威檢索機構國內外查新證明,這在世界幕墻領域尚屬首例。該技術于2006年元月23日通過了由建設部科技發展中心在北京組織的全國建設科技成果評估,評審專家一致認為該技術填補了國際建筑幕墻領域技術空白,屬國內首創,達到國際先進水平。
多年來,產量居世界首位的中國http://www.stonebuy.com建筑幕墻,其墻面材料多以玻璃、石材http://www.stonebuy.com/和金屬鋁板為主,而由石英晶粒和莫來石晶粒經1200℃高溫燒制而成的陶瓷類多晶材料無論在強度、吸水率、耐候性等方面都優于一般石材http://www.stonebuy.com/而價格卻比石材http://www.stonebuy.com/低三分之二左右,且色彩、圖案、表面質感更加豐富多彩并可人為控制,從而可以更大范圍更為準確地滿足設計師的設計意圖和千變萬化的市場http://www.stonebuy.com/enterprise/FuJian/QuanZhouShi.html需求,更能表現現代幕墻的時尚感、裝飾感。但是,由于瓷板本身具有硬度大、質地脆、易破碎、厚度薄等缺陷,用傳統的安裝方式都無法解決這些難題,所以長期以來這種性能良好,美觀經濟的新型材料都難以廣泛應用于干掛幕墻工程。如何克服這種材料易破碎產生的安全隱患,保證陶瓷板、微晶板安裝錨固點的牢固可靠,是國際幕墻技術領域長期以來無法解決的技術難題。因而大大地制約了大規格、超大規格陶瓷板、微晶板的推廣應用。
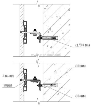
清華大學建筑設計研究院和北京清石創新幕墻技術有限公司聯合攻關,采用在陶瓷板背面復合一層高強度、高耐候性的安全復合層,克服了陶瓷板脆性、易破碎的致命弱點,增強了陶瓷幕墻板的安全性。同時,在陶瓷板背面安裝了專用的背槽式錨固件,這種特殊的錨固件與陶瓷板之間的接觸面積大、機械http://www.stonebuy.com/machine/和膠粘相結合的錨固方式不會產生大的初始施工應力,錨固點牢固可靠、承載力大、可適應較薄瓷板的特點,再與板材背面的安全復合層的配合使用,大大提高了幕墻的安全性。從而成功地解決了瓷板、微晶石板安全應用于高層、超高層幕墻的世界性難題。
經國家建筑工程質量監督檢驗中心所做的幕墻三性試驗,耐火試驗,抗震試驗和100萬次抗疲勞等系列實驗表明,該技術各項結構、性能指標均能滿足幕墻工程使用要求,經多項實際工程應用,效果良好。該技術工藝體系完整,工廠化生產程度高。加工運輸、安裝破碎率低、安裝便捷、效率質量高,具有良好的安全性、經濟性。具有廣闊的市場http://www.stonebuy.com/enterprise/FuJian/QuanZhouShi.html前景和重要的推廣價值。
為滿足不同的要求,研發方還針對陶瓷板微晶石板的特點制定出了可適應不同建筑基體、不同技術條件、不同使用環境和不同檔次需求的七大技術體系的加工工藝和質量標準,以便用戶選用。
目前,背槽式干掛、幕墻技術的錨固件制備方法已獲得國家發明專利;安全復合層技術獲得國家實用新型專利。這兩項技術的研發運用,是我國建設科技工作者響應黨中央提出的自主創新,建設創新型社會的成功范例。為我國幕墻新型飾面材料的開發和陶瓷板的應用探索出了一條新路子,它的推廣和應用必將成為推動我國幕墻領域科技創新,技術進步的新生力量,成為裝點我們現代城市的又一道亮麗風景。
吉林白工程板 火燒板 路邊石,13196080289
芝麻黑、鐘山青(廠礦一體)、廣西芝麻黑、金點綠,桂林紅、承接各類
花崗巖, 大理石, 大板, 薄板, 臺面板, 異形, 洗面臺, 圓柱