拉槽
  拉槽是裝修的工藝術語,俗稱槽溝,指用拉削方法加工工件的槽。可以增加空間美觀,起到一定的裝飾效果,引導水流,防滑等作用。
  大理石拉槽
  顧名思義就是在淋浴房里用一塊大理石切割成防滑的拉槽板,鋪在淋浴房的中間位置,常見的是開十字槽和條形槽。主要是根據淋浴房的大小尺寸,將
石材http://www.stonebuy.com/加工成8厘米左右的正方形,深度為1厘米,形成網格裝圖案。然后四周做成低洼的導水槽,這就是拉槽了,而且這樣還便于浴室做干濕分離。
  這種拉槽的設計直接能加速地面排水不會造成積水的現象。淋浴房四周排水會做拉槽設計,這樣做比傳統的斜坡排水效果要好,而且還防滑不會返味;
拉槽排水快,腳感好,不打滑。
拉槽比單純的瓷磚更美觀、顯檔次。
做大理石拉槽還是拉絲
  小編個人觀點是要美觀直接一步到位拉槽拉絲都可以,至于后期的污垢清洗問題可以設計下拉槽的深淺和尺寸。
  1、如果是要使用的話,造價高點的也有材質選好的, 拉槽的槽內也要磨光效果。
  2、舒適性來說 做有腳底按摩效果的 或者另外加一些防滑輔助的材料即可。
  3、小戶型淋浴房地面大理石拉槽裝修效果為整個浴室帶來很好的美化作用,暖黃色的帶有印紋的大力地地板鋪滿房間地面,與地面同樣顏色花紋的瓷磚鋪在房間的墻面上,給人一種溫馨舒適的別致感。
做大理石拉槽用凹字還是V字
  拉槽面主要是起防滑作用,根據拉槽面可分為直向紋面和格子面,拉槽方式主要分為“凹”字型槽和“V”字型槽。
  ▲圖為防滑拉槽板的直紋面,槽為“凹”字型槽。槽與槽之間的距離可根據個人喜好排列,此種工藝加工較為簡單,價格也便宜。
  ▲圖為防滑拉槽板的格子面,槽為“V”字型槽。此種工藝深受大家喜愛,不但美觀,而且“V”字型槽排水好。
  1、摘要
  歐式的建筑已經越來越成為人們喜歡的主流風格, 無論是羅馬圓柱、吧臺、花槽、衛生間還是廳堂方柱,拉槽工藝都能夠得以體現。
羅馬圓柱
臺面
  2、關鍵字
  規范流程、提高質量、走向精益生產。
  3、操作工職責:
  3. 5 水磨員工在打磨拋光的過程中要控制打磨拋光的質量, 確保槽在打磨拋光過程中不變形、 槽間距的直線度、間距一致。
  4、加工流程:
  4. 1 橋切切板:
  4. 1. 1 橋切選擇板面符合加工質量要求的板材切板進入立體工序拉槽。材料厚度不能薄于 1mm 偏差, 避免拉槽后而導致底部強度不夠而出現斷裂;出現板材偏薄而使拉槽的深度 太淺。也不可偏厚大于 1mm, 避免因厚度問題引來相關質量投訴。見下圖。
  4. 1. 2 對于規格小于 500 以下且有拼接關系的拉槽板, 橋切必須合料切板,拉完槽、水磨拋光 完成為優等品后再行分切, 避免橋切機(仿形機等拉槽設備) 因精度問題而造成槽與槽之間拼接 不上, 或因為水磨人為因素造成變形、勾頭等而造成槽與槽之間拼接不上。見下圖:
  對于這種訂單,橋切應該切料 :
  1500(1000+200+200+余量) *302*16. 5 到立體整件拉槽,再行分切、背倒,這樣可以避免因槽拉的不一致導致拼接不上。
  4. 2 立體開槽
  4. 2. 1 非通槽的加工:
  對于非通槽而言, 一般沒有拼接關系, 因此嚴格按照圖紙加工即可, 選擇鑼輪必須根據圖 紙選擇, 在審單時查看要造型的槽車間是否有現成鑼輪。如沒有,與產銷辦溝通是否按最接 近的鑼輪加工。如可以, 則需要待更改圖紙下發后車間再加工。
  一般鑼輪為:
  圓形鑼輪(直徑 mm) :10、 15、 20、 30、 50
  方形鑼輪(直徑 mm) :10、 15、 20、 25、 30、 40、 60、 80、 90
  4. 2. 2 通槽的加工:
  4. 2. 1. 1 拉絲面的加工:
  Ⅰ:拉絲面的槽寬一般就是刀片的厚度, 在 4-5mm 之間, 通常是不需要拋光的(除非客戶 有需求, 價位有調整) 。
  由于拉絲面的槽非常之多, 如果一條槽出現誤差哪怕僅為 0. 1mm, 那么 50 條槽的累計誤差為 5mm, 錯位現象就十分嚴重了, 因此加工拉絲面的時候 一定要注意拼接起來進行加工。
  Ⅱ :使用拉絲面成型刀加工:
  將多個槽合在一起, 設計拉絲面成型刀。用拉絲面成型刀加工可以提高拉槽的加工精度。減少拉絲面的偏差。
  此類拉絲面產銷協要求客戶做標準 5*5 的拉槽, 以后車間只按這個標準加工。
  Ⅲ:此類槽的加工, 依據加工寬度制作標準的鋼模板, 加工過程中, 每拉 5 條槽, 操作工 要用標準鋼模板檢查。當發現所拉的槽與標準模板偏差大于 1mm 時, 重新調整槽間距, 糾正加工偏差, 使加工誤差符合加工圖紙要求。
  如果拉槽板的寬度太寬, 制作整體的的模板太浪費, 可以只制作一半寬度的模板。
  Ⅳ:合料加工或按拼接方式加工的拉槽板分件或分開后按拼接順序編號。
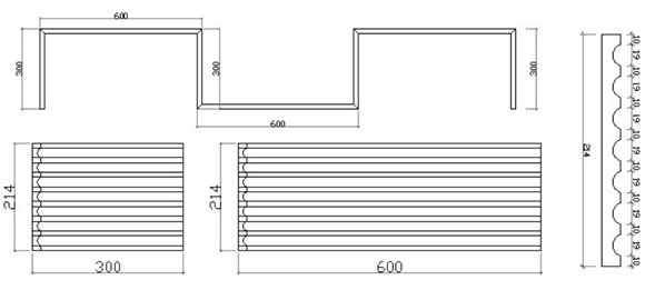
  舉例:某工程訂單需要 3400*210*16. 5 的拉絲面, 橋切切料 3000 長和 400 長各一件,由于槽位比較多且需要試拼, 必須要做到 0 誤差, 否則累計誤差將會非常大, 拉槽時必須將兩塊板試拼起來后再行拉槽, 如此方可保證一致。
  此類拉絲面板加工時需要注意的是, 拼接加工的規格如果超過了機臺面, 則無法加工。
  某工程訂單 5500*3400 規格的拉槽板,因規格太大, 無法拼接起來拉槽, 導致出現累計誤差而客戶進行投訴。因此橋切機在加工超過工作臺尺寸的拉槽板前 需要與產銷協溝通如要加工這么多槽的拉槽板, 可能會有 2mm 左右的誤差, 待產銷協回復客戶同意之后才能加工。
  4. 2. 2. 2 普通方槽的打磨拋光
  與拉絲面一樣,只是槽稍微寬一些, 槽內需要打磨拋光, 水磨工序在拋光時不能將槽間 距磨大或將槽口磨歪, 臺階磨圓、 磨變形。
  這類拉槽板在打磨拋光時, 最好不要用電動工 具打磨拋光, 用手工擦砂紙或用砂紙包裹木條、 石條的方法打磨拋光。
  4. 2. 2. 3 圓弧槽的加工
  圓弧槽的加工工藝相對于拉絲面和方槽來說要簡單一些, 關鍵是要選準鑼輪, 橋切切板時將長度小于 500 合料切板, 不需要背倒的拉槽板要先水磨拋光后再分件, 避免拉槽板的邊緣部分磨變形。如果需要背倒,先背倒,然后水磨拋光,最后分件。
  舉例 :某訂單需要如下規格的拉槽板, 橋切可連體開料,也可分開開料 600 長 3 件, 300 長 4 件, 立體橋切將 7 片板拼接起來后再行拉槽, 再倒邊, 最后拋光, 拋光時也可以拼接起來進行拋光
  在加工拉槽板的過程中,車間排產員需優化圖紙,作出合理的開料方案給橋切, 操作工拉槽時必須嚴格按排產圖紙加工,對于不清楚、 模棱兩可的圖紙必須進行反饋,水磨工也需要拼接拋光, 減少磨變形的現象, 拉槽工藝才能得到優化, 精益生產才能得到體現。
  5. 1 槽間距的檢驗
  依據加工單上的尺寸檢驗槽間距的加工誤差。檢驗標準:±1。如果偏差超過標準時, 必須按拼接圖修磨,使之圓滑、順暢修磨的長度要大于 1000 以上的長。
  5. 2 凡有拼關系的拉槽板, 檢驗員必須按加工單上的安裝圖檢驗拼口處的加工誤差, 并檢查拼接編號的正確性。
—END—