今天這篇文章將系統地幫你解決下列問題:
1、如何理解水磨石的干掛/濕貼/預制板材做法?
2、如何理解水磨石的現場澆筑做法?
3、水磨石的干掛、濕貼、現場澆筑與預制板材,應該如何選擇?
一、水磨石上墻應該怎么做?
水磨石的工藝主要分為「現澆」和「預制」2種形式。
要想上墻,必然是采用預制水磨石板的形式來實現,因為現澆的流體,是不可能上墻的。一是因為上墻后熱脹冷縮系數大;二是上墻后,整體打磨結晶會非常麻煩。
下面我們一起來看看預制水磨石上墻的工藝是怎么樣的。
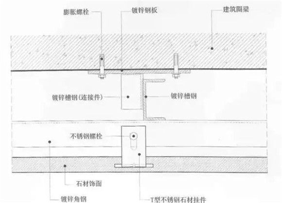
1、預制水磨石上墻工藝
△水磨石預制板材
2、預制水磨石濕貼工藝淺析
因此,關于水磨石濕貼上墻的做法,同樣參考標準的墻面濕貼工藝即可。
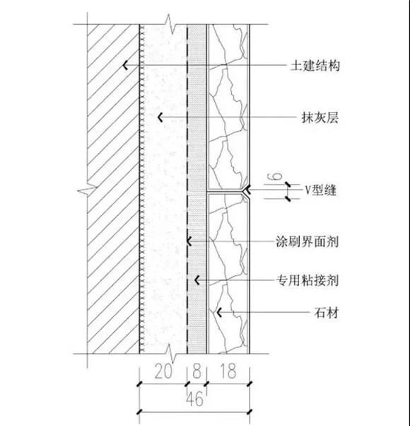
▲墻面濕貼的節點圖解析
▲墻面濕貼的三維示意圖
濕貼的做法從工藝上來說,沒有太大的差別,差別只是膠粘劑材料的選擇。常見的用于濕貼的粘接材料主要有膠泥和水泥砂漿這2大類。
▲不同方式的對比截圖
二、預制水磨石地面的標準做法
▲現場澆筑水磨石
話說回來,水磨石上墻用得最多的是預制板干掛,而在鋪地時,采用現澆就是最主流的。
因此,把它套成預制水磨石的節點構造應當是下面這樣的:
▲水磨石地坪節點分析示意圖
(1)水磨石現場澆筑=找平層+金屬分隔條+水磨石面層
(2)找平層是用細石混凝土或者抗裂砂漿為填充物進行找平,找平層一般為50mm或40mm。
▲水磨石現場澆筑地坪節點剖面圖
▲水磨石地坪三維圖
(3)若采用金屬條分割現澆的水磨石,人造石地面,建議分隔條的間距不大于1000mm,否則會由于熱脹冷縮產生裂縫。因此,規范上建議現澆水磨石的分隔條設置間距在900mm左右為宜。
三、面對那么多工藝選擇哪一種更合適?
最后,我們來看看實例,在什么空間中,采用預制的水磨石,什么空間中又該采用現澆的水磨石呢?
根據應用場合,咱們可以分為以下幾類:
1、墻面 柱面
家居和臺面方面的運用
▲預制水磨石干掛上墻
水磨石在墻面,家居及臺面等部分的應用上,主要運用的是預制板材干掛、粘貼(膠粘+濕貼)的工藝,我們可以感受一下實際應用的案例:
▲水磨石濕貼上墻
▲預制水磨石膠粘于吧臺
另外,我們需要注意的是,水磨石預制板材干掛的工藝,由于它的板材大小一般是600*600mm、800*800mm或定制尺寸的規格,工廠預制現場安裝。
因此板材間會有拼縫,但是在工藝上的處理已經可以讓拼縫效果不是那么明顯,不會影響設計效果。
▲預制水磨石拼縫
2、地面 樓梯
踢腳和地臺方面的運用
▲現澆水磨石地面
▲預制水磨石濕貼于樓梯
▲預制水磨石踢腳