1)所有骨架鋼材需熱鍍鋅處理。
2)掛扣件扁鋼及螺栓需熱鍍鋅處理或為不銹鋼掛件。
3)焊縫必須飽滿牢固。
4)鋼架焊接處必須除銹后涂刷兩道防銹漆然后涂銀粉漆處理。
5)膨脹螺栓抗拔要求必須符合規范和設計要求。
注:
1.室外花崗巖最低處必須低于室外地坪50,預防室外地面沉降時花崗巖露邊;
2.槽鋼離開硬性地面20-30mm。
注:膨脹螺栓橫向間距根據板材調整,但最大間距不得大于1000mm。
注:室外花崗巖窗臺及線腳基層水泥砂漿粉刷坡度大于10%。
2)門窗洞及梁底朝天板應作鋁片或扁鐵側面加固方案施工。
5)灌水泥砂漿時要求成45度方向灌實,所有腰線頂面板及壓頂板嚴禁半干粉砂漿鋪板,必須使用流動的水泥砂漿鋪貼面板。
注:線腳壓頂板與墻體之間預留10-15mm,施工時,壓頂板從外向墻根方向擠壓施工,使水砂漿從該預留縫中擠出,未飽滿處用原漿灌實,壓頂板定位后,將擠出砂漿清理。
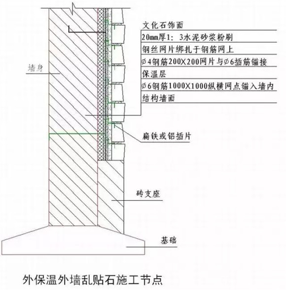
濕貼文化石、亂貼石做法
說明:
1)墻體為多孔磚砌體時,砌墻時預留鋼筋,如未作預留,應將鋼筋慣穿至室內墻面錨接。
2)墻體為混凝土面時,可選用植筋方案施工。
3)文化石飾面高度超過一層時,在二層圈梁部位增設一道鋼筋混凝土支座線,如有飾面要求,可選用暗設方案施工。
防水改進方案
GRC裝飾線改進方案說明:
1)所有GRC裝飾線必須保證上平面有坡度,下有滴水功能;
2)GRC拼接處保證不滲水;
3)所有GRC預埋固定鐵件必須為熱鍍鋅。
硬質景觀部分
—END—